- TOP
- 新築一戸建てをエリアから探す
- 市川市
- 稲荷木
- 深夜対応可能 稲荷木2丁目第3・・角地で開放的・・
新築一戸建て

深夜対応可能 稲荷木2丁目第3・・角地で開放的・・
情報更新日:2025/11/14 次回更新予定日:2025/11/28
所在地千葉県市川市稲荷木2丁目[周辺地図]
交 通総武線「本八幡」駅バス12分 停歩2分






・・深夜対応可能・・
・価格交渉可能
・総武線本八幡駅利用可能
・住環境良好
・子育て環境良好
・駐車1台完備
・フラット35適用住宅
・設備豊富住宅
・最新システムカウンターキッチン
・乾燥暖房機付き最新システムユニットバス
・独立洗面台
・全室ペアガラス
・断熱玄関ドア
・価格交渉可能
・総武線本八幡駅利用可能
・住環境良好
・子育て環境良好
・駐車1台完備
・フラット35適用住宅
・設備豊富住宅
・最新システムカウンターキッチン
・乾燥暖房機付き最新システムユニットバス
・独立洗面台
・全室ペアガラス
・断熱玄関ドア
担当スタッフより

- 伊藤 智大
- 駐車1台可能で、角地で開放的な敷地。
二面バルコニーで明るい日差しが差し込みます。
是非、市川市内で新築一戸建てをお探しの方はお気軽にお問い合わせ下さい。
お待ちしております。
物件詳細情報
物件No.20000425615
| 所在地 | 千葉県市川市稲荷木2丁目 | ||
|---|---|---|---|
| 交通 | 総武線「本八幡」駅バス12分 バス停「田尻2丁目」停歩2分 総武線「本八幡」駅徒歩24分 東京メトロ東西線「原木中山」駅徒歩25分 |
||
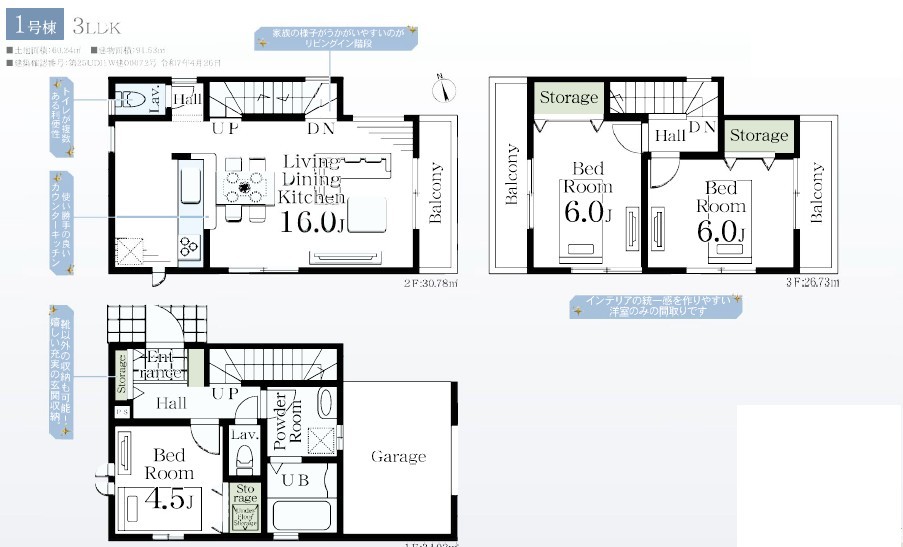
| 間取 | 3LDK (LDK16帖、洋室4.5帖、洋室6帖、洋室6帖) | ||
| 土地面積 | 60.22m² 公簿 | ||
| 建物面積 | 91.53m² 公簿 | ||
| 販売戸数 | 1戸 | 総戸数 | 全1戸 |
| 構造・規模 | 木造 3階建て | 築年・入居 | 2025年9月下旬 |
| バルコニー | 東向き | 建物現況 | 完成済 |
| 建築確認番号 | 第25UDI1W建00072-2号 | 駐車スペース | 1台(車庫) |
| 引渡時期 | 即引渡可 | 国土法届出 | 不要 |
| 地目 | 宅地 | 用途地域 | 第一種中高層住居専用地域 |
| 建ぺい率 | 60% | 容積率 | 200% |
| 都市計画 | 市街化区域 | 権利種類 | 所有権 |
| 接道 | 北東側3.6M公道に接道 北西側4.5M私道に接道 |
小学校区 | 稲荷木小学校(800m) |
| 中学校区 | 第六中学校(1600m) | 取引態様 | 媒介 |
| 設備 | 公営水道、本下水、都市ガス | ||
| 備考・制限等 | 当社はお客様の様々なニーズにお応えするため、社員一同、全力で日々の業務に取り組んでおります。 特に千葉県内の「売りたい」「買いたい」をお考えの方、不動産に関する事や住宅ローン・税金の事など、どのようなご質問でもお気兼ねなくお問い合わせくださいませ。 豊富な情報力とお客様に合せたスピーディーな応対を心掛けております。 どうぞ『株式会社ブリッジ』にて住まい探しのひとときをお楽しみ下さいませ。 お客様のご来店心よりお待ち申し上げます。 |
||
こだわり項目
角地平坦地緑豊かな住宅地閑静な住宅地地盤調査済LDK15帖以上耐震構造制震構造省エネ・エコ住宅BELS/省エネ基準適合(認定書あり)全室2面採光3面採光床下収納全居室収納ワイドバルコニー2面以上バルコニー複層ガラス設計住宅性能評価付建設住宅性能評価付(新築時)浄水器省エネ給湯器ガスコンロシステムキッチンカウンターキッチン3口以上コンロトイレ2ヶ所温水洗浄便座シャワー付洗面台浴室乾燥機追焚機能浴室1坪以上浴室に窓オートバス全居室フローリングリビング階段ウォークインクローゼットバリアフリー仕様TVモニタ付インターホンシャッター車庫ノンホルムアルデヒド24時間換気システム小学校800m以内陽当り良好通風良好フラット35Sに対応フラット35・S適合証明書
- ※価格は物件の代金総額を表示しており、消費税が課税される場合は税込み価格です。(1,000円未満は切り上げ。)
税率は引き渡し時期により異なりますので、各物件の詳細につきましてはお問い合わせください。 - ※敷地権利が借地権のものは価格に権利金を含みます。
- ※制作中に内容が変更される場合もありますので、あらかじめご了承ください。
- ※購入の前には物件内容や契約条件についてご自身で十分な確認をしていただくようにお願いいたします。
- ※完成予想図はいずれも外構、植栽、外観等実際のものとは多少異なることがあります。
- ※CG合成の画像の場合、実際とは多少異なる場合があります。
周辺地図
周辺施設一覧
- ショッピングセンター
- スーパー
- コンビニ
- ドラッグストア
- ホームセンター
- 飲食店
- その他店舗
- 商店街
- 大学
- 専門学校
- 高校・高専
- 中学校
- 小学校
- 保育園
- 幼稚園
- 公民館・児童館
- 病院
- 郵便局
- 役所
- 図書館
- 金融機関
- 警察・消防
- 趣味・娯楽施設
- 公園・運動施設
- 周辺の街並み
- 駅
- その他
お問い合せ先
- 株式会社ブリッジ 木更津本店
- お電話でのお問い合わせは
0438-36-2225「ホームページを見た」とお問い合わせください - 千葉県木更津市真舟5-7-17 1F
- 営業時間:10:00~19:00
※電話受付時間は9:00~23:00 - 定休日:毎週火・水曜日
※ご案内・ご内覧は年中無休でご対応致します。 - 免許番号:千葉県知事(1)第18114号
- TOP
- 新築一戸建てをエリアから探す
- 市川市
- 稲荷木
- 深夜対応可能 稲荷木2丁目第3・・角地で開放的・・











