- TOP
- 新築一戸建てをエリアから探す
- 袖ケ浦市
- 奈良輪
- 1号棟 ☆新着☆・・ウィッシュタウン袖ケ浦駅前2期・・
新築一戸建て
1号棟 ☆新着☆・・ウィッシュタウン袖ケ浦駅前2期・・
情報更新日:2026/03/07 次回更新予定日:2026/03/21
所在地千葉県袖ケ浦市奈良輪[周辺地図]
交 通内房線「袖ケ浦」駅徒歩5分






・・即日見学可能・・
・価格交渉可能
・JR内房線袖ケ浦駅徒歩5分
・住環境良好
・子育て環境良好
・駐車場2台完備
・すまい給付金対象物件
・フラット35適用住宅
・設備豊富住宅
・最新システムカウンターキッチン
・乾燥暖房機付き最新システムユニットバス
・独立洗面台
・全室ペアガラス
・断熱玄関ドア
・他の建売とは違うデザイナーズ住宅
・価格交渉可能
・JR内房線袖ケ浦駅徒歩5分
・住環境良好
・子育て環境良好
・駐車場2台完備
・すまい給付金対象物件
・フラット35適用住宅
・設備豊富住宅
・最新システムカウンターキッチン
・乾燥暖房機付き最新システムユニットバス
・独立洗面台
・全室ペアガラス
・断熱玄関ドア
・他の建売とは違うデザイナーズ住宅
担当スタッフより

- 細野 飛鳥
- 駐車2台可能でJR内房線袖ケ浦駅徒歩5分、ゆりまちモールまで徒歩5分の好立地。
子育て世代に人気な奈良輪小学校エリアです。日当たり良好。玄関には嬉しい土間収納付き。
是非、袖ヶ浦市内で新築一戸建をお探しの方はお気軽にお問い合わせ下さい。
社員一同、心よりお待ちしております。
各棟情報
物件詳細情報
物件No.20000427994-004
| 所在地 | 千葉県袖ケ浦市奈良輪 | ||
|---|---|---|---|
| 交通 | 内房線「袖ケ浦」駅徒歩5分 山手線「品川」駅バス62分 バス停「袖ケ浦駅南口」停歩5分 山手線「新宿」駅バス63分 バス停「袖ケ浦バスターミナル」停歩35分 |
||
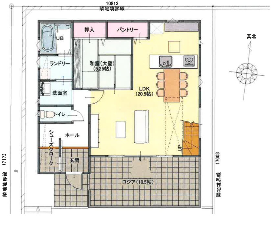
| 間取 | 5LDK + SIC、WIC付きで収納豊富 (LDK20.5帖、和室5.25帖、洋室7帖、洋室5.33帖、洋室5.33帖、洋室5.33帖) | ||
| 土地面積 | 185.36m² 公簿 | ||
| 建物面積 | 122.54m² 公簿 | ||
| 販売戸数 | 1戸 | 総戸数 | 全5戸 |
| 構造・規模 | 木造 2階建て | 築年・入居 | 2025年8月下旬(築後未入居) |
| バルコニー | 南向き | 建物現況 | 建築中 |
| 建築確認番号 | 第24UDI1W建03330号 | 駐車スペース | 3台(並列) |
| 引渡時期 | 相談 | 地目 | 宅地 |
| 用途地域 | 無指定地域 | 建ぺい率 | 50% |
| 容積率 | 100% | 都市計画 | 市街化調整区域 |
| 建築許可事由 | 開発許可等による分譲地内 | 権利種類 | 所有権 |
| 接道 | 南側4M公道に接道 | 小学校区 | 奈良輪小学校(650m) |
| 中学校区 | 昭和中学校(1360m) | 取引態様 | 媒介 |
| 設備 | 公営水道、個別浄化槽、都市ガス | ||
| 備考・制限等 | 当社はお客様の様々なニーズにお応えするため、社員一同、全力で日々の業務に取り組んでおります。 特に千葉県内の「売りたい」「買いたい」をお考えの方、不動産に関する事や住宅ローン・税金の事など、どのようなご質問でもお気兼ねなくお問い合わせくださいませ。 豊富な情報力とお客様に合わせたスピーディーな対応を心掛けております。 どうぞ『株式会社ブリッジ』にて住まい探しのひとときをお楽しみくださいませ。 お客様のご来店心よりお待ち申し上げます。 |
||
こだわり項目
平坦地緑豊かな住宅地閑静な住宅地前面棟無地盤調査済南側道路LDK15帖以上耐震構造省エネ・エコ住宅デザイナーズハウス南向き南庭ワイドバルコニー複層ガラス設計住宅性能評価付食器洗浄機浄水器省エネ給湯器ガスコンロシステムキッチンカウンターキッチン3口以上コンロパントリー(食器・食品の収納庫)トイレ2ヶ所温水洗浄便座浴室乾燥機浴室暖房追焚機能浴室1坪以上浴室に窓全居室フローリングウォークインクローゼットシューズインクローゼットバリアフリー仕様TVモニタ付インターホンノンホルムアルデヒド24時間換気システム小学校800m以内保育園・幼稚園800m以内スーパー400m以内コンビニ400m以内公園800m以内陽当り良好フラット35Sに対応フラット35・S適合証明書隣家との間隔が大きい
- ※価格は物件の代金総額を表示しており、消費税が課税される場合は税込み価格です。(1,000円未満は切り上げ。)
税率は引き渡し時期により異なりますので、各物件の詳細につきましてはお問い合わせください。 - ※敷地権利が借地権のものは価格に権利金を含みます。
- ※制作中に内容が変更される場合もありますので、あらかじめご了承ください。
- ※購入の前には物件内容や契約条件についてご自身で十分な確認をしていただくようにお願いいたします。
- ※完成予想図はいずれも外構、植栽、外観等実際のものとは多少異なることがあります。
- ※CG合成の画像の場合、実際とは多少異なる場合があります。
周辺地図
周辺施設一覧
- ショッピングセンター
- スーパー
- コンビニ
- ドラッグストア
- ホームセンター
- 飲食店
- その他店舗
- 商店街
- 大学
- 専門学校
- 高校・高専
- 中学校
- 小学校
- 保育園
- 幼稚園
- 公民館・児童館
- 病院
- 郵便局
- 役所
- 図書館
- 金融機関
- 警察・消防
- 趣味・娯楽施設
- 公園・運動施設
- 周辺の街並み
- 駅
- その他
お問い合せ先
- 株式会社ブリッジ 木更津本店
- お電話でのお問い合わせは
0438-36-2225「ホームページを見た」とお問い合わせください - 千葉県木更津市真舟5-7-17 1F
- 営業時間:10:00~19:00
※電話受付時間は9:00~23:00 - 定休日:毎週火・水曜日
※ご案内・ご内覧は年中無休でご対応致します。 - 免許番号:千葉県知事(1)第18114号
- TOP
- 新築一戸建てをエリアから探す
- 袖ケ浦市
- 奈良輪
- 1号棟 ☆新着☆・・ウィッシュタウン袖ケ浦駅前2期・・










