- TOP
- 新築一戸建てをエリアから探す
- 我孫子市
- 中峠
- 1号棟 深夜対応可能 我孫子市中峠第20全9棟・・住環境が充実・・
新築一戸建て
1号棟 深夜対応可能 我孫子市中峠第20全9棟・・住環境が充実・・
情報更新日:2025/10/31 次回更新予定日:2025/11/17
所在地千葉県我孫子市中峠[周辺地図]
交 通成田線「湖北」駅徒歩8分






・・深夜対応可能・・
・価格交渉可能
・JR成田線湖北駅利用可能
・制震装置SAFE365設置住宅
・耐力外壁面材ダイライト
・10年間の金利優遇フラット35S対象
・浴室乾燥機付きシステムバスルーム
・最新システムキッチン
・24時間換気システム
・基本照明付き物件
・全居室ペアガラス
・カースペース2台あり
・価格交渉可能
・JR成田線湖北駅利用可能
・制震装置SAFE365設置住宅
・耐力外壁面材ダイライト
・10年間の金利優遇フラット35S対象
・浴室乾燥機付きシステムバスルーム
・最新システムキッチン
・24時間換気システム
・基本照明付き物件
・全居室ペアガラス
・カースペース2台あり
すべての画像
駐車2台可能で、住環境が充実のエリアです。 収納面も豊富で、心安らぐ和の空間で家族団らんのひとときを楽しめて快適な住環境が整っております。 是非、我孫子内で新築一戸建てをお探しの方はお気軽にお問い合わせください。 お待ちしております。 ※外観イメージ
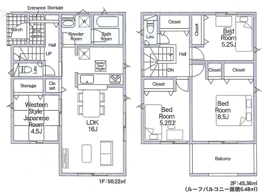
用途に合わせて使いやすい間取です
その他
笑顔が増える家族憩い空間 同社同等仕様施工例
明るく心地よい風が通り抜けるリビング 同社同等仕様施工例
料理をしながらリビング全体を見渡せるカウンターキッチン 同社同等仕様施工例
和室
収納
明るい雰囲気で落ち着く空間 同社同等仕様施工例
クローゼットも大きめでお洋服もたくさん収納できます(WIC) 同社同等仕様施工例
優しい色合いのフローリングでインテリアの配置が楽しみ 同社同等仕様施工例
収納
換気、乾燥、暖房、涼風機能付きシステムバス 同社同等仕様施工例
朝の身支度が快適な独立洗面台♪裏は収納になっており、お化粧道具もすっきり収納が出来ます! 同社同等仕様施工例
1階・2階ウォシュレット機能付き 同社同等仕様施工例
家族みんなのシューズもすっきり収納できる 同社同等仕様施工例
担当スタッフより

- 円谷 知美
- 駐車2台可能で、住環境が充実のエリアです。
収納面も豊富で、心安らぐ和の空間で家族団らんのひとときを楽しめて快適な住環境が整っております。
是非、我孫子内で新築一戸建てをお探しの方はお気軽にお問い合わせください。
お待ちしております。
各棟情報
物件詳細情報
物件No.20000428052-009
| 所在地 | 千葉県我孫子市中峠 | ||
|---|---|---|---|
| 交通 | 成田線「湖北」駅徒歩8分 成田線「東我孫子」駅徒歩39分 成田線「新木」駅徒歩46分 |
||
| 間取 | 4LDK (LDK16帖、和室4.5帖、洋室8.5帖、洋室5.25帖、洋室5.25帖) | ||
| 土地面積 | 135.1m² 公簿 | ||
| 建物面積 | 95.58m² 公簿 | ||
| 販売戸数 | 7戸 | 総戸数 | 全9戸 |
| 構造・規模 | 木造 2階建て | 築年・入居 | 2025年11月下旬 |
| バルコニー | 南向き | 建物現況 | 建築中 |
| 建築確認番号 | 第KBI₋SGM25-10-2026号 | 駐車スペース | 2台(カースペース) |
| 引渡時期 | 相談 | 国土法届出 | 不要 |
| 地目 | 畑 | 用途地域 | 第一種低層住居専用地域 |
| 建ぺい率 | 60% | 容積率 | 150% |
| 都市計画 | 市街化区域 | 権利種類 | 所有権 |
| 接道 | 北側5M公道に接道 | 小学校区 | 湖北台西小学校(646m) |
| 中学校区 | 湖北台中学校(1134m) | 取引態様 | 媒介 |
| 設備 | 公営水道、個別浄化槽、都市ガス | ||
| 備考・制限等 | 当社はお客様の様々なニーズにお応えするため、社員一同、全力で日々の業務に取り組んでおります。 特に千葉県内の「売りたい」「買いたい」をお考えの方、不動産に関する事や住宅ローン・税金の事など、どのようなご質問でもお気兼ねなくお問い合わせくださいませ。 豊富な情報力とお客様に合せたスピーディーな応対を心掛けております。 どうぞ『株式会社ブリッジ』にて住まい探しのひとときをお楽しみ下さいませ。 お客様のご来店心よりお待ち申し上げます。 |
||
こだわり項目
整形地平坦地緑豊かな住宅地閑静な住宅地地盤調査済LDK15帖以上耐震構造制震構造省エネ・エコ住宅南向き床下収納全居室収納ワイドバルコニー複層ガラス耐震適合設計住宅性能評価付建設住宅性能評価付(新築時)浄水器省エネ給湯器ガスコンロシステムキッチンカウンターキッチン3口以上コンロトイレ2ヶ所温水洗浄便座シャワー付洗面台浴室乾燥機浴室暖房追焚機能浴室1坪以上浴室に窓オートバスウォークインクローゼットバリアフリー仕様TVモニタ付インターホンノンホルムアルデヒド防犯カメラ24時間換気システム小学校800m以内公園800m以内陽当り良好通風良好フラット35Sに対応フラット35・S適合証明書
- ※価格は物件の代金総額を表示しており、消費税が課税される場合は税込み価格です。(1,000円未満は切り上げ。)
税率は引き渡し時期により異なりますので、各物件の詳細につきましてはお問い合わせください。 - ※敷地権利が借地権のものは価格に権利金を含みます。
- ※制作中に内容が変更される場合もありますので、あらかじめご了承ください。
- ※購入の前には物件内容や契約条件についてご自身で十分な確認をしていただくようにお願いいたします。
- ※完成予想図はいずれも外構、植栽、外観等実際のものとは多少異なることがあります。
- ※CG合成の画像の場合、実際とは多少異なる場合があります。
周辺地図
周辺施設一覧
- ショッピングセンター
- スーパー
- コンビニ
- ドラッグストア
- ホームセンター
- 飲食店
- その他店舗
- 商店街
- 大学
- 専門学校
- 高校・高専
- 中学校
- 小学校
- 保育園
- 幼稚園
- 公民館・児童館
- 病院
- 郵便局
- 役所
- 図書館
- 金融機関
- 警察・消防
- 趣味・娯楽施設
- 公園・運動施設
- 周辺の街並み
- 駅
- その他
お問い合せ先
- 株式会社ブリッジ 木更津本店
- お電話でのお問い合わせは
0438-36-2225「ホームページを見た」とお問い合わせください - 千葉県木更津市真舟5-7-17 1F
- 営業時間:10:00~19:00
※電話受付時間は9:00~23:00 - 定休日:毎週火・水曜日
※ご案内・ご内覧は年中無休でご対応致します。 - 免許番号:千葉県知事(1)第18114号
- TOP
- 新築一戸建てをエリアから探す
- 我孫子市
- 中峠
- 1号棟 深夜対応可能 我孫子市中峠第20全9棟・・住環境が充実・・















