- TOP
- 新築一戸建てをエリアから探す
- 千葉市花見川区
- 犢橋町
- 深夜対応可能 犢橋町・・敷地65坪の広々邸宅・・
新築一戸建て
深夜対応可能 犢橋町・・敷地65坪の広々邸宅・・
情報更新日:2026/04/27 次回更新予定日:2026/05/11
所在地千葉県千葉市花見川区犢橋町[周辺地図]
交 通総武線「新検見川」駅バス15分 停歩6分






・・深夜対応可能・・
・価格交渉可能
・JR総武線新検見川駅利用可能
・京成本線実籾駅利用可能
・京成本線八千代台駅利用可能
・住環境良好
・子育て環境良好
・駐車場3台以上完備
・フラット35適用住宅
・設備豊富住宅
・最新システムカウンターキッチン
・乾燥暖房機付き最新システムユニットバス
・独立洗面台
・全室ペアガラス
・断熱玄関ドア
・価格交渉可能
・JR総武線新検見川駅利用可能
・京成本線実籾駅利用可能
・京成本線八千代台駅利用可能
・住環境良好
・子育て環境良好
・駐車場3台以上完備
・フラット35適用住宅
・設備豊富住宅
・最新システムカウンターキッチン
・乾燥暖房機付き最新システムユニットバス
・独立洗面台
・全室ペアガラス
・断熱玄関ドア
すべての画像
駐車3台以上可能で、敷地65坪の広々邸宅。 各居室に収納を完備しておりお部屋がすっきり整います。 是非、千葉市内で新築一戸建をお探しの方はお気軽にお問い合わせ下さい。 お待ちしております。
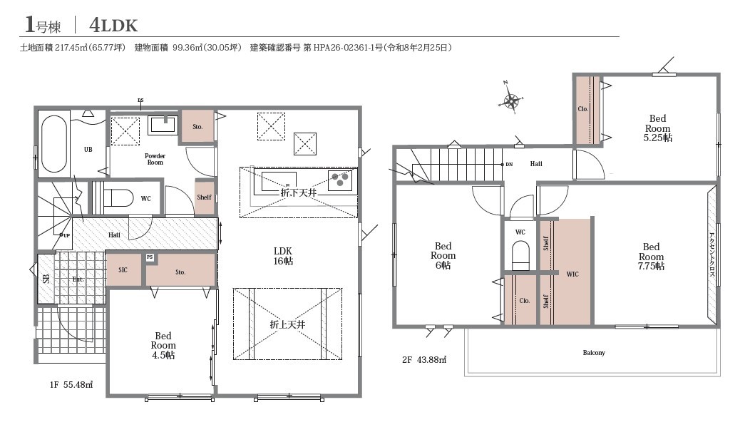
用途に合わせて使いやすい間取です
その他
笑顔が増える家族憩い空間 以下同社同等仕様施工例
明るく心地よい風が通り抜けるリビング
料理をしながらリビング全体を見渡せるカウンターキッチン
キッチン用品や食品ストックをすっきり収納できます
明るい雰囲気で落ち着く空間
クローゼットも大きめでお洋服もたくさん収納できます
洋室
収納
洋室
収納豊富で毎日のお洋服選びも楽しくなりそうですね
換気、乾燥、暖房、涼風機能付きシステムバス
朝の身支度が快適な独立洗面台♪裏は収納になっており、お化粧道具もすっきり収納が出来ます!
1階・2階ウォシュレット機能付き
担当スタッフより

- 横山 麻鈴
- 駐車3台以上可能で、敷地65坪の広々邸宅。
各居室に収納を完備しておりお部屋がすっきり整います。
是非、千葉市内で新築一戸建をお探しの方はお気軽にお問い合わせ下さい。
お待ちしております。
物件詳細情報
物件No.20000452265
| 所在地 | 千葉県千葉市花見川区犢橋町 | ||
|---|---|---|---|
| 交通 | 総武線「新検見川」駅バス15分 バス停「広尾十字路」停歩6分 京成本線「実籾」駅徒歩49分 京成本線「八千代台」駅徒歩55分 |
||
| 間取 | 4LDK + SIC・WIC・リビング収納 (LDK16帖、洋室4.5帖、洋室7.75帖、洋室6帖、洋室5.25帖) | ||
| 土地面積 | 217m² 公簿 | ||
| 建物面積 | 99m² 公簿 | ||
| 販売戸数 | 1戸 | 総戸数 | 全1戸 |
| 構造・規模 | 木造 2階建て | 築年・入居 | 2026年7月上旬 |
| バルコニー | 南向き | 建物現況 | 建築中 |
| 建築確認番号 | 第HPA-26-02361-1号 | 駐車スペース | 3台以上(カースペース:並列) |
| 引渡時期 | 相談 | 国土法届出 | 不要 |
| 地目 | 宅地 | 用途地域 | 無指定地域 |
| 建ぺい率 | 60% | 容積率 | 200% |
| 都市計画 | 市街化調整区域 | 建築許可事由 | 開発許可等による分譲地内 |
| 権利種類 | 所有権 | 接道 | 南西側4M公道に接道 |
| 小学校区 | 犢橋小学校(880m) | 中学校区 | 犢橋中学校(2080m) |
| 取引態様 | 媒介 | ||
| 設備 | 公営水道、本下水、都市ガス | ||
| 備考・制限等 | 当社はお客様の様々なニーズにお応えするため、社員一同、全力で日々の業務に取り組んでおります。 特に千葉県内の「売りたい」「買いたい」をお考えの方、不動産に関する事や住宅ローン・税金の事など、どのようなご質問でもお気兼ねなくお問い合わせくださいませ。 豊富な情報力とお客様に合せたスピーディーな応対を心掛けております。 どうぞ『株式会社ブリッジ』にて住まい探しのひとときをお楽しみ下さいませ。 お客様のご来店心よりお待ち申し上げます。 |
||
こだわり項目
整形地平坦地緑豊かな住宅地閑静な住宅地地盤調査済南側道路LDK15帖以上耐震構造省エネ・エコ住宅BELS/省エネ基準適合(認定書あり)長期優良住宅デザイナーズハウス南向き全室2面採光南庭庭床下収納全居室収納ワイドバルコニー複層ガラス設計住宅性能評価付建設住宅性能評価付(新築時)浄水器省エネ給湯器ガスコンロシステムキッチンカウンターキッチン3口以上コンロトイレ2ヶ所温水洗浄便座シャワー付洗面台浴室乾燥機浴室暖房追焚機能浴室1坪以上浴室に窓オートバス全居室フローリング自然素材ウォークインクローゼットシューズインクローゼットバリアフリー仕様TVモニタ付インターホン24時間換気システム小学校800m以内公園800m以内陽当り良好通風良好フラット35Sに対応フラット35・S適合証明書
- ※価格は物件の代金総額を表示しており、消費税が課税される場合は税込み価格です。(1,000円未満は切り上げ。)
税率は引き渡し時期により異なりますので、各物件の詳細につきましてはお問い合わせください。 - ※敷地権利が借地権のものは価格に権利金を含みます。
- ※制作中に内容が変更される場合もありますので、あらかじめご了承ください。
- ※購入の前には物件内容や契約条件についてご自身で十分な確認をしていただくようにお願いいたします。
- ※完成予想図はいずれも外構、植栽、外観等実際のものとは多少異なることがあります。
- ※CG合成の画像の場合、実際とは多少異なる場合があります。
周辺地図
周辺施設一覧
- ショッピングセンター
- スーパー
- コンビニ
- ドラッグストア
- ホームセンター
- 飲食店
- その他店舗
- 商店街
- 大学
- 専門学校
- 高校・高専
- 中学校
- 小学校
- 保育園
- 幼稚園
- 公民館・児童館
- 病院
- 郵便局
- 役所
- 図書館
- 金融機関
- 警察・消防
- 趣味・娯楽施設
- 公園・運動施設
- 周辺の街並み
- 駅
- その他
お問い合せ先
- 株式会社ブリッジ 木更津本店
- お電話でのお問い合わせは
0438-36-2225「ホームページを見た」とお問い合わせください - 千葉県木更津市真舟5-7-17 1F
- 営業時間:10:00~19:00
※電話受付時間は9:00~23:00 - 定休日:毎週火・水曜日
※ご案内・ご内覧は年中無休でご対応致します。 - 免許番号:千葉県知事(1)第18114号
- TOP
- 新築一戸建てをエリアから探す
- 千葉市花見川区
- 犢橋町
- 深夜対応可能 犢橋町・・敷地65坪の広々邸宅・・













