- TOP
- 新築一戸建てをエリアから探す
- 松戸市
- 栄町
- 本日見学可能 栄町・大切なお車を守るガレージ付き邸宅・
新築一戸建て

本日見学可能 栄町・大切なお車を守るガレージ付き邸宅・
情報更新日:2026/04/25 次回更新予定日:2026/05/09
所在地千葉県松戸市栄町7丁目[周辺地図]
交 通常磐線「馬橋」駅徒歩15分






・・本日見学可能・・
・価格交渉可能
・常磐線馬橋駅利用可能
・常磐線北松戸駅利用可能
・常磐線新松戸駅利用可能
・住環境良好
・子育て環境良好
・駐車場1台完備(ガレージ)
・フラット35適用住宅
・設備豊富住宅
・最新システムカウンターキッチン
・乾燥暖房機付き最新システムユニットバス
・独立洗面台
・全室ペアガラス
・断熱玄関ドア
・価格交渉可能
・常磐線馬橋駅利用可能
・常磐線北松戸駅利用可能
・常磐線新松戸駅利用可能
・住環境良好
・子育て環境良好
・駐車場1台完備(ガレージ)
・フラット35適用住宅
・設備豊富住宅
・最新システムカウンターキッチン
・乾燥暖房機付き最新システムユニットバス
・独立洗面台
・全室ペアガラス
・断熱玄関ドア
すべての画像
駐車1台可能(ガレージ)で、2駅利用可能の通勤通学に助かる好立地! 収納スペースも充実しておりお家の中がスッキリ整います。 角地で陽光もよくぽかぽか気持ち良さそうですね♪ 是非、松戸市内で新築一戸建てをお探しの方はお気軽にお問い合わせ下さい。 お待ちしております。
用途に合わせて使いやすい間取です
その他
笑顔が増える家族憩い空間 以下同社同等仕様施工例
明るく心地よい風が通り抜けるリビング
料理をしながらリビング全体を見渡せるカウンターキッチン
広々シンク
明るい雰囲気で落ち着く空間
クローゼットも大きめでお洋服をたくさん収納できます
優しい色合いのフローリングでインテリアの配置が楽しみ
収納豊富で毎日のお洋服選びも楽しくなりそうですね
寝室や子供部屋にもご利用いただける洋室
いつでもお部屋をスッキリお使い頂けます
換気、乾燥、暖房、涼風機能付きシステムバス
朝の身支度が快適な独立洗面台♪裏は収納になっており、お化粧道具もすっきり収納が出来ます!
1階・2階ウォシュレット機能付き
担当スタッフより

- 伊藤 智大
- 駐車1台可能(ガレージ)で、2駅利用可能の通勤通学に助かる好立地!
収納スペースも充実しておりお家の中がスッキリ整います。
角地で陽光もよくぽかぽか気持ち良さそうですね♪
是非、松戸市内で新築一戸建てをお探しの方はお気軽にお問い合わせ下さい。
お待ちしております。
物件詳細情報
物件No.20000446527
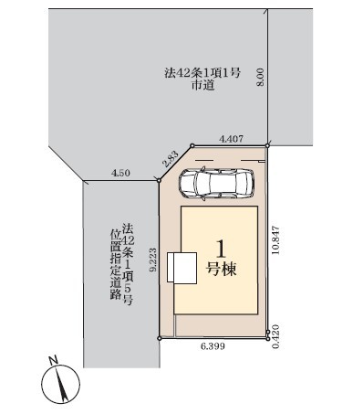
| 所在地 | 千葉県松戸市栄町7丁目 | ||
|---|---|---|---|
| 交通 | 常磐線「馬橋」駅徒歩15分 常磐線「北松戸」駅徒歩18分 常磐線「新松戸」駅バス10分 バス停「市民センター」停歩10分 |
||
| 間取 | 4LDK + リビング階段・ガレージ (LDK19.75帖、洋室7.25帖、洋室6帖、洋室5.75帖、洋室4.5帖) | ||
| 土地面積 | 70m² 公簿 | ||
| 建物面積 | 110m² 公簿 | ||
| 販売戸数 | 1戸 | 総戸数 | 全1戸 |
| 構造・規模 | 木造 3階建て | 築年・入居 | 2026年4月上旬 |
| バルコニー | 西向き | 建物現況 | 建築中 |
| 建築確認番号 | 第25UDI1W建07541号 | 駐車スペース | 1台(車庫) |
| 引渡時期 | 相談 | 国土法届出 | 不要 |
| 地目 | 宅地 | 用途地域 | 第一種中高層住居専用地域 |
| 建ぺい率 | 60% | 容積率 | 200% |
| 都市計画 | 市街化区域 | 権利種類 | 所有権 |
| 接道 | 北側7.53M公道に接道 西側4.5M公道に接道 |
小学校区 | 旭町小学校(1100m) |
| 中学校区 | 旭町中学校(1300m) | 取引態様 | 媒介 |
| 設備 | 公営水道、本下水、都市ガス | ||
| 備考・制限等 | 当社はお客様の様々なニーズにお応えするため、社員一同、全力で日々の業務に取り組んでおります。 特に千葉県内の「売りたい」「買いたい」をお考えの方、不動産に関する事や住宅ローン・税金の事など、どのようなご質問でもお気兼ねなくお問い合わせくださいませ。 豊富な情報力とお客様に合せたスピーディーな応対を心掛けております。 どうぞ『株式会社ブリッジ』にて住まい探しのひとときをお楽しみ下さいませ。 お客様のご来店心よりお待ち申し上げます。 |
||
こだわり項目
角地整形地平坦地緑豊かな住宅地閑静な住宅地地盤調査済LDK15帖以上耐震構造省エネ・エコ住宅BELS/省エネ基準適合(認定書あり)長期優良住宅南向き床下収納ワイドバルコニー2面以上バルコニー複層ガラス設計住宅性能評価付建設住宅性能評価付(新築時)浄水器省エネ給湯器ガスコンロシステムキッチンカウンターキッチン3口以上コンロトイレ2ヶ所温水洗浄便座シャワー付洗面台浴室乾燥機浴室暖房追焚機能浴室1坪以上浴室に窓オートバス全居室フローリングリビング階段TVモニタ付インターホン24時間換気システム小学校800m以内スーパー400m以内コンビニ400m以内公園800m以内陽当り良好通風良好フラット35Sに対応フラット35・S適合証明書
- ※価格は物件の代金総額を表示しており、消費税が課税される場合は税込み価格です。(1,000円未満は切り上げ。)
税率は引き渡し時期により異なりますので、各物件の詳細につきましてはお問い合わせください。 - ※敷地権利が借地権のものは価格に権利金を含みます。
- ※制作中に内容が変更される場合もありますので、あらかじめご了承ください。
- ※購入の前には物件内容や契約条件についてご自身で十分な確認をしていただくようにお願いいたします。
- ※完成予想図はいずれも外構、植栽、外観等実際のものとは多少異なることがあります。
- ※CG合成の画像の場合、実際とは多少異なる場合があります。
周辺地図
周辺施設一覧
- ショッピングセンター
- スーパー
- コンビニ
- ドラッグストア
- ホームセンター
- 飲食店
- その他店舗
- 商店街
- 大学
- 専門学校
- 高校・高専
- 中学校
- 小学校
- 保育園
- 幼稚園
- 公民館・児童館
- 病院
- 郵便局
- 役所
- 図書館
- 金融機関
- 警察・消防
- 趣味・娯楽施設
- 公園・運動施設
- 周辺の街並み
- 駅
- その他
お問い合せ先
- 株式会社ブリッジ 木更津本店
- お電話でのお問い合わせは
0438-36-2225「ホームページを見た」とお問い合わせください - 千葉県木更津市真舟5-7-17 1F
- 営業時間:10:00~19:00
※電話受付時間は9:00~23:00 - 定休日:毎週火・水曜日
※ご案内・ご内覧は年中無休でご対応致します。 - 免許番号:千葉県知事(1)第18114号
- TOP
- 新築一戸建てをエリアから探す
- 松戸市
- 栄町
- 本日見学可能 栄町・大切なお車を守るガレージ付き邸宅・













