- TOP
- 中古住宅をエリアから探す
- 市原市
- 青葉台
- 即日見学可能 青葉台6丁目・未・入・居・物・件・
中古住宅
即日見学可能 青葉台6丁目・未・入・居・物・件・
情報更新日:2026/04/13 次回更新予定日:2026/04/27
所在地千葉県市原市青葉台6丁目[周辺地図]
交 通内房線「姉ケ崎」駅徒歩29分






・・即日見学可能・・
・価格交渉可能
・JR内房線姉ヶ崎駅利用可能
・住環境良好
・子育て環境良好
・駐車場2台完備
・すまい給付金対象物件
・フラット35適用住宅
・設備豊富住宅
・最新システムカウンターキッチン
・乾燥暖房機付き最新システムユニットバス
・独立洗面台
・全室ペアガラス
・断熱玄関ドア
・他の建売とは違うデザイナーズ住宅
・価格交渉可能
・JR内房線姉ヶ崎駅利用可能
・住環境良好
・子育て環境良好
・駐車場2台完備
・すまい給付金対象物件
・フラット35適用住宅
・設備豊富住宅
・最新システムカウンターキッチン
・乾燥暖房機付き最新システムユニットバス
・独立洗面台
・全室ペアガラス
・断熱玄関ドア
・他の建売とは違うデザイナーズ住宅
担当スタッフより

- 髙﨑 伶也
- 駐車2台可能(車種による)で、エコキュートオール電化住宅
小中学校お近くでお子様に安心
是非、市原市で新築戸建てをお探しの方はお問い合わせください。
TEL0438-36-2225
物件詳細情報
物件No.20000369413
| 所在地 | 千葉県市原市青葉台6丁目 | ||
|---|---|---|---|
| 交通 | 内房線「姉ケ崎」駅徒歩29分 内房線「姉ケ崎」駅バス7分 バス停「東公園」停歩2分 内房線「姉ケ崎」駅バス12分 バス停「緑ヶ丘団地入口」停歩11分 |
||
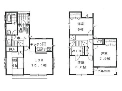
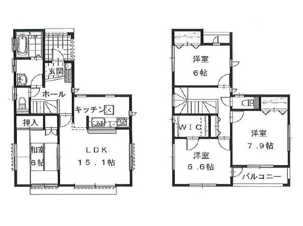
| 間取 | 4LDK + 2.6帖のWIC、収納多数 (LDK15.1帖、和室6帖、洋室7.9帖、洋室6.6帖、洋室6帖) | ||
| 土地面積 | 179.73m² 公簿 | ||
| 建物面積 | 105.02m² 公簿 | ||
| 構造・規模 | 木造 2階建て | 築年月 | 2023年4月築 |
| バルコニー | 南向き | 施工会社 | 有限会社 大勇建設 |
| 国土法届出 | 不要 | 地目 | 宅地 |
| 用途地域 | 第一種低層住居専用地域 | 建ぺい率 | 50% |
| 容積率 | 100% | 都市計画 | 市街化区域 |
| 駐車スペース | 2台(並列) | 現況 | 空家 |
| 引渡時期 | 相談 | 権利種類 | 所有権 |
| 接道 | 北側6M道路に接道 | 小学校区 | 青葉台小学校(1040m) |
| 中学校区 | 姉崎東中学校(320m) | 取引態様 | 媒介 |
| 備考・制限等 | 当社はお客様の様々なニーズにお応えするため、社員一同、全力で日々の業務に取り組んでおります。 特に千葉県内の「売りたい」「買いたい」をお考えの方、不動産に関する事や住宅ローン・税金の事など、どのようなご質問でもお気兼ねなくお問い合わせくださいませ。 豊富な情報力とお客様に合せたスピーディーな応対を心掛けております。 どうぞ『株式会社ブリッジ』にて住まい探しのひとときをお楽しみ下さいませ。 お客様のご来店心よりお待ち申し上げます。 |
||
こだわり項目
高台LDK15帖以上デザイナーズハウス庭オール電化食器洗浄機浄水器省エネ給湯器IHクッキングヒーター3口以上コンロトイレ2ヶ所TVモニタ付インターホン小学校800m以内保育園・幼稚園800m以内コンビニ400m以内公園800m以内
- ※価格は物件の代金総額を表示しており、消費税が課税される場合は税込み価格です。(1,000円未満は切り上げ。)
税率は引き渡し時期により異なりますので、各物件の詳細につきましてはお問い合わせください。 - ※敷地権利が借地権のものは価格に権利金を含みます。
- ※制作中に内容が変更される場合もありますので、あらかじめご了承ください。
- ※購入の前には物件内容や契約条件についてご自身で十分な確認をしていただくようにお願いいたします。
- ※完成予想図はいずれも外構、植栽、外観等実際のものとは多少異なることがあります。
- ※CG合成の画像の場合、実際とは多少異なる場合があります。
周辺地図
周辺施設一覧
- ショッピングセンター
- スーパー
- コンビニ
- ドラッグストア
- ホームセンター
- 飲食店
- その他店舗
- 商店街
- 大学
- 専門学校
- 高校・高専
- 中学校
- 小学校
- 保育園
- 幼稚園
- 公民館・児童館
- 病院
- 郵便局
- 役所
- 図書館
- 金融機関
- 警察・消防
- 趣味・娯楽施設
- 公園・運動施設
- 周辺の街並み
- 駅
- その他
お問い合せ先
- 株式会社ブリッジ 木更津本店
- お電話でのお問い合わせは
0438-36-2225「ホームページを見た」とお問い合わせください - 千葉県木更津市真舟5-7-17 1F
- 営業時間:10:00~19:00
※電話受付時間は9:00~23:00 - 定休日:毎週火・水曜日
※ご案内・ご内覧は年中無休でご対応致します。 - 免許番号:千葉県知事(1)第18114号
- TOP
- 中古住宅をエリアから探す
- 市原市
- 青葉台
- 即日見学可能 青葉台6丁目・未・入・居・物・件・












